Espace propriétaire
fr

Votre recherche

Loué
Vendôme (41100)

36 m²

LOCAL COMMERCIAL HYPER CENTRE

680 € / mois TTC - HC*
Ref : 2864CBT
Découvrir le bien

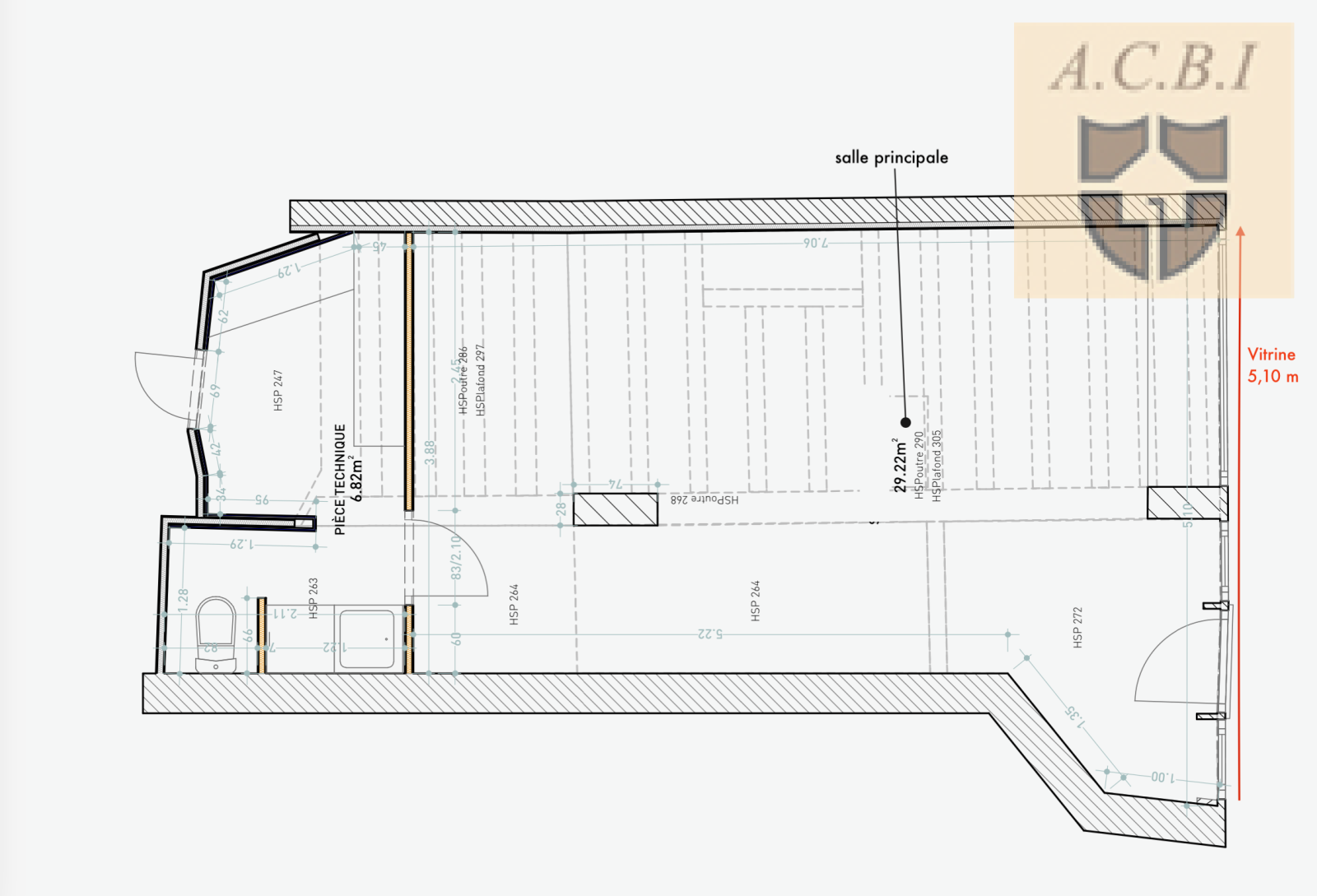
Superbe local commercial d'une surface d'env 36m² en Hyper centre de Vendome , belle visibilité. Il se compose d'une surface commerciale d'env 29 m² et une arrière boutique avec point d'eau et wc d'env 7 m² , vitrine de 5.1m linéaire . Loyer 680€ HC + Charges 110€ ( comprenant electricité+eau+ prorata Taxe fonciére) . Contacter CBLOT 0619208617 Agence ACBI

Les informations sur les risques auxquels est exposé ce bien sont disponibles sur le site: www.georisques.gouv.fr


Les informations sur les risques auxquels ce bien est exposé sont disponibles sur le site Géorisques
TRAD_ZEPHYR_Caracteristique TRAD_ZEPHYR_Valeurs
Type de transac Local commercial
Code postal 41100
Surface habitable (m²) 36 m²
Vue RUE
Superficie (m²) 36
TRAD_ZEPHYR_Caracteristique TRAD_ZEPHYR_Valeurs
Mode de chauffage Electrique
Type de chauffage Convecteur
Format de chauffage Individuel
Année de construction 1600
Quartier HYPER CENTRE
Dimensions vitrines 5.1m
TRAD_ZEPHYR_Caracteristique TRAD_ZEPHYR_Valeurs
Loyer TTC 680 € / mois
Honoraires TTC charge locataire 680 €
Dont état des lieux 150 €
Dépot de garantie Non renseigné
Bail Commercial
Chiffre d'affaires
EBE
Rez de chaussée
Surface commercial 29.22 m²

Arriere boutique avec wc et point d'eau 6.82 m²

DPE GES
Contacter pour ce bien
L'agence
Téléphone 02 54 23 89 03
Adresse
37 Faubourg Chartrain 41100 Vendôme

* Champ obligatoire

Les informations recueillies sur ce formulaire sont enregistrées dans un fichier informatisé par La Boite Immo agissant comme Sous-traitant du traitement pour la gestion de la clientèle/prospects de l'Agence / du Réseau qui reste Responsable du Traitement de vos Données personnelles.
La base légale du traitement repose sur l’intérêt légitime de l'Agence / du Réseau.
Elles sont conservées jusqu'à demande de suppression et sont destinées à l'Agence / au Réseau.
Conformément à la loi « informatique et libertés », vous pouvez exercer votre droit d'accès aux données vous concernant et les faire rectifier en contactant l'Agence / le Réseau.
Si vous estimez, après avoir contacté l'Agence / le Réseau, que vos droits « Informatique et Libertés » ne sont pas respectés, vous pouvez adresser une réclamation à la CNIL.
Nous vous informons de l’existence de la liste d'opposition au démarchage téléphonique « Bloctel », sur laquelle vous pouvez vous inscrire ici : https://www.bloctel.gouv.fr 
Dans le cadre de la protection des Données personnelles, nous vous invitons à ne pas inscrire de Données sensibles dans le champ de saisie libre
Ce site est protégé par reCAPTCHA, les Politiques de Confidentialité et les Conditions d'Utilisation de Google s'appliquent.

Découvrir nos outils